Key Urban Housing of the Twentieth Century: Plans, Sections and Elevations












посмотреть все 6 фото
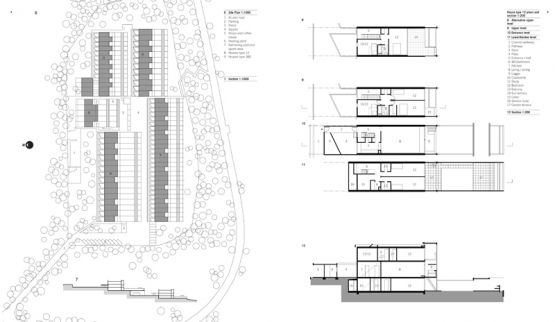
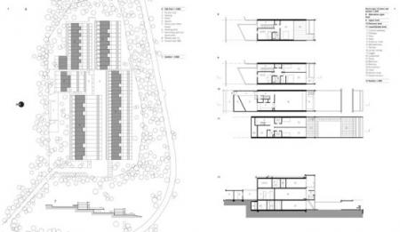
The design of multiple housing – a new building type, especially for growing urban populations – was a major new area of activity for architects at the beginning of the 20th century, and one that continues into the 21st century. The latest title in the successful series Plans, Sections and Elevations, this book features 87 of the most influential modern housing designs of the past 100 years by the best-known architects in the field. Each project is explained with a concise text and photographs and specially created scale drawings, including floor plans and site plans, sections and elevations where appropriate. The projects are organized in six roughly chronological chapters tracing the history of both public and private housing around the world. The detailed drawings allow each project to be analyzed in depth, which, alongside the author’s authoritative text, will make this an invaluable resource for architects and students. As an added bonus, the book includes a CD-ROM containing digital files of all the drawings featured in the book.
Logolounge 4. 2000 работ, созданных ведущими дизайнерами мира
Ukiyo-e: The Art of the Japanese Print
Logolounge 5. 2000 работ, созданных ведущими дизайнерами мира
Wristwatch Annual 2012: The Catalog of Producers, Prices, Models, and Specifications
Rock 'n' Roll Myths: The True Stories Behind the Most Infamous Legends
Colour Recipes for Painted Furniture and More
The Rhetoric of Modernism: Le Corbusier as a Lecturer
Gothic Architecture: 158 Plates from the Brandons' Treatise, 1847
The Paris Salons 1895-1914: Volume l Jewellery A-K
Design and the Decorative Arts: Georgian Britain 1714-1837
Eco Architecture: Urban Style (Maisons de Ville, Stadtische Hauser)
Стильные занавески. Оформление окна своими руками
LIFE:The Rolling Stones: 50 Years of Rock 'n' Roll
Close Up, Collector's Edition (with signed photo-print, limited and numbered)
Pure Style Home: Accessible New Ideas for Every Room in your Home
Настольная книга художника. Оборудование, материалы, процессы, техники
Kindergarten Architecture (New Trend of Kindergaten)
A New Sculpturalism: Contemporary Architecture from Southern California
Brand Spaces: Branded Architecture and the Future of Retail Design
Western Furniture: 1350 to the Present Day
500 x Art in Public. Masterpieces from the Ancient World to the Present
Michael O'Neill. On Yoga: The Architecture of Peace
Dream Gardens of England: 100 Inspirational Gardens