New Town Houses: Creative Architecture Between Walls





























посмотреть все 23 фото
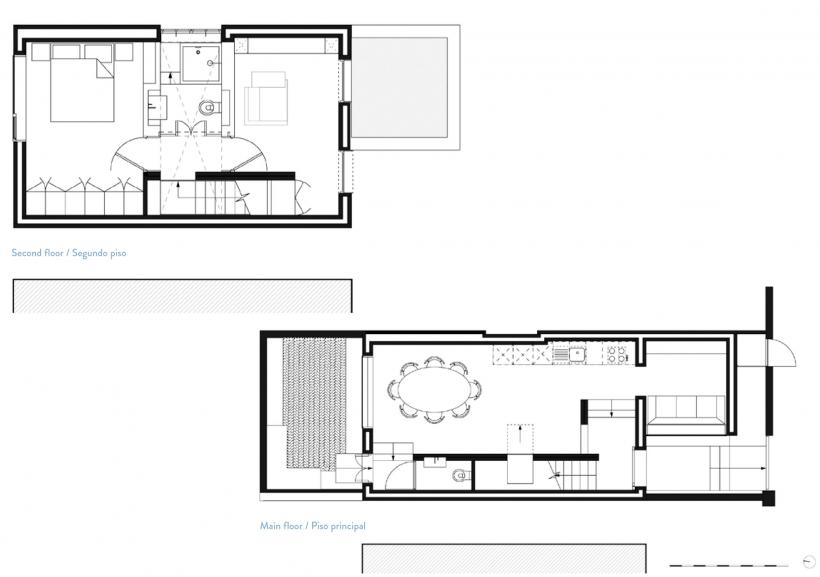
New Town House brings together a collection of some of the more interesting and creative town house projects which have been recently constructed. The focus on recently completed projects allows for an analysis of the challenges of integrating new buildings in existing residential areas.
All of the featured projects share one main characteristic their ability to make the most out of limited spaces in creative ways. Within the basic typology of a flat building between parallel walls, a world of possibilities is opened up: spaces full of light, endless staircases, curtain walls, facades which spread completely out to the street or enclose mysterious gardens and interior patios.
Steve McCurry: A Life in Pictures: 40 Years of Photography
The New Eighteenth-Century Style: Rediscovering a French Decor
1000 Nudes - A History of Erotic Photography from 1839-1939 (Taschen 25th Anniversary Series)
Alphonse Mucha Masterworks
Sourcebook of Contemporary Urban Design
От мегалита до мегаполиса: очерки истории архитектуры и градостроительства
Универсальный справочник прораба. Современная стройка в России от А до Я
The New York Times Explorer. Mountains, Deserts & Plains
The Complete Guide to 20th Century Antiques
Luggala: The Story of a Guinness House
The Joy of Decorating. Southern Style with Mrs. Howard
Fast Forward: The Cars of the Future, the Future of Cars
Faile: Works on Wood: Process, Paintings and Sculpture
Rome: The Monocle Travel Guide Series
Rooms to Inspire in the Country: The Infinite Possibilities of American House Design