TATLIN PLAN 1/11/2012 Центральный рынок "ЦВЕТНОЙ" / проект Меганом




















посмотреть все 14 фото
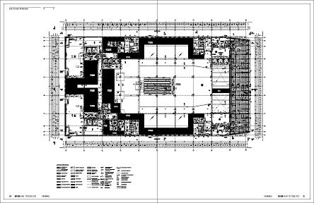
Номер посвящен самой нашумевшей российской постройке 2010 года - Tsvetnoy Central Market. Обновленный центральный рынок — проект девелоперской компании RGI International, которая до этого специализировалась на строительстве элитного жилья и офисов. Построен он был по проекту архитектурного бюро «Проект Меганом» и представляет собой не просто рынок, а гибрид рынка и универмага европейского типа – department store. Подобное сочетание – результат компромисса между желанием заказчика и архитекторов сохранить функцию Центрального рынка, знакомого не одному поколению москвичей, и требованием властей сделать традиционный для Москвы последнего времени торговый центр у метро. Всего было сделано около 50 вариантов проекта. Читателям представляется возможность познакомиться с любопытной планировочной схемой, конструктивными особенностями и другими элементами замысла архитекторов и девелоперов, а также с историей реконструкций Центрального рынка.
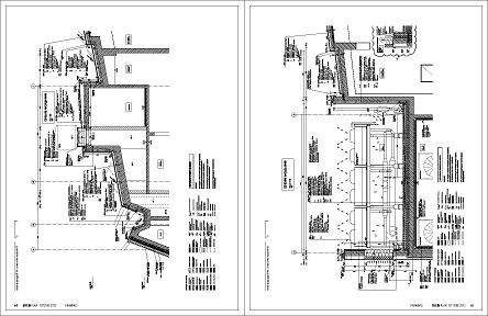
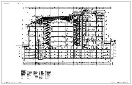
В журнале представлены основные планы, разрезы, фасады, узлы и схемы проекта.
SED Design: East German Design - 1949–1989 (Taschen 25th Anniversary Series)
Goncharova: The Art and Design of Natalia Goncharova
Blueprints of Fashion: Home Sewing Patterns of the 1940s
Pale and Interesting: Decorating with Whites, Pastels and Neutrals for a Warm and Welcoming Home
Strangely Familiar: Acrobats, Athletes, and Other Traveling Troupes
Cottages & Co : Scenes de la vie rurale. Huiles et aquarelles
Инженерно-строительная графика. Справочное пособие
Сетки. Креативные решения для графических дизайнеров (+ CD-ROM)
Климатические балки: проектирование, монтаж, эксплуатация
Архитектура российского села. Региональный аспект
Textile Designs: 200 Years of Patterns for Printed Fabrics arranged by Motif, Colour, Period and Design
Medieval and Renaissance Stained Glass in the Victoria and Albert Museum
Classic Florida Style: The Houses of Taylor and Taylor
Инженерное оборудование высотных зданий (2-е издание, исправленное и дополненное)
Japanese Woodblock Prints: Artists, Publishers And Masterworks: 1680 - 1900
Профессиональный девелопмент недвижимости. Руководство ULI по ведению бизнеса