TATLIN PLAN 2/10/2011 Величкин и Голованов. Жилой комплекс "Кристалл"






















посмотреть все 16 фото
Более двадцати лет «Архитектурно-художественные мастерские архитекторов Величкина и Голованова» разрабатывают и реализуют проекты домов, квартир, объектов городской среды, объединяя выдающихся мастеров, членов Союза Архитекторов Дмитрия Величкина и Николая Голованова. Вместе с бывшими учениками, а ныне сотрудниками «Архитектурно-художественных мастерских» ими создано несколько десятков проектов, каждый из которых наглядно воплощает принципы уместности и безупречности вписанности архитектуры в окружающую среду.
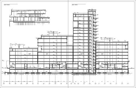
Многофункциональный жилой комплекс «Кристалл» в городе Казань был построен в 2009 году. Жилой комплекс стоит на высоком берегу реки Казанки в очень выгодном с точки зрения видов месте. Совершенно оправданно выбрано решение со сложным силуэтом и богатой разработкой объемов. При этом общий зеленовато-серый колорит стекла и керамогранита «собирает» разновысокие объемы, детали из нержавейки придают лоск на расстоянии вытянутой руки. В то же время здание не подавляет, сохраняет человеческий масштаб.
В журнале собрана проектная документация по объекту.
__________
Номер журнала посвящен проекту многофункционального жилого комплекса «Кристалл» в Казани. Авторы проекта — Дмитрий Величкин и Николай Голованов, основатели и руководители «Архитектурно-художественных мастерских Величкина и Голованова». Строительство комплекса было окончено в 2009 году. Жилой комплекс стоит на высоком берегу реки Казанки в очень выгодном с точки зрения видовой привлекательности месте, однако на первых этапах строительства у архитекторов возникли проблемы с вписыванием постройки в общий контекст. Совершенно оправданно выбрано решение со сложным силуэтом и богатой разработкой объемов. Так как основной идеей стала тема ветра, то в здании было применено планарное остекление, с четвертого этажа расстилаются панорамные виды на всю Казань. Одной из самых ярких составляющих комплекса стал отделочный материал. Общий зеленовато-серый колорит стекла и керамогранита «собирает» разновысокие объемы, детали из нержавейки придают лоск на расстоянии вытянутой руки. Несмотря на этажность, здание не подавляет и сохраняет человеческий масштаб. В журнале представлены: вступительная статья с комментариями архитекторов, основные планы, разрезы, фасады, узлы и схемы проекта.
The Camondo Legacy: The Passions of a Paris Collector
Church Flowers: The Essential Guide to Arranging Flowers in Church
Riviera Cocktail, Collector's Edition (with signed photo-print, limited and numbered)
French Furniture and Gilt Bronzes: Baroque and Regence
Outside In: A Visual Tour of Indoor Gardens, Garages, Pools, Spas, and More
Monasteries and Monastic Orders: 2000 Years of Christian Art and Culture
I Want To Be Her! How Friends and Strangers Helped Shape My Style
The Portrait Photographer's Lighting Style Guide: Recipes for Lighting and Composing Professional Portraits
The Hotel Book. Great Escapes North America (Tascheh 25 - Special edition)
Victorian Architectural Details: Designs for Over 700 Stairs, Mantels, Doors, Windows, Cornices, Porches, and Other Decorative Elements
Экологические основы выбора материалов в архитектурном проектировании
A Woman's Shed: Spaces for Women to Create, Write, Make, Grow, Think, and Escape
Архитектура российского села. Региональный аспект
Textile Designs: 200 Years of Patterns for Printed Fabrics arranged by Motif, Colour, Period and Design
Medieval and Renaissance Stained Glass in the Victoria and Albert Museum
Classic Florida Style: The Houses of Taylor and Taylor
Инженерное оборудование высотных зданий (2-е издание, исправленное и дополненное)
Japanese Woodblock Prints: Artists, Publishers And Masterworks: 1680 - 1900
Профессиональный девелопмент недвижимости. Руководство ULI по ведению бизнеса