The Modern Californian Beach House






















посмотреть все 16 фото
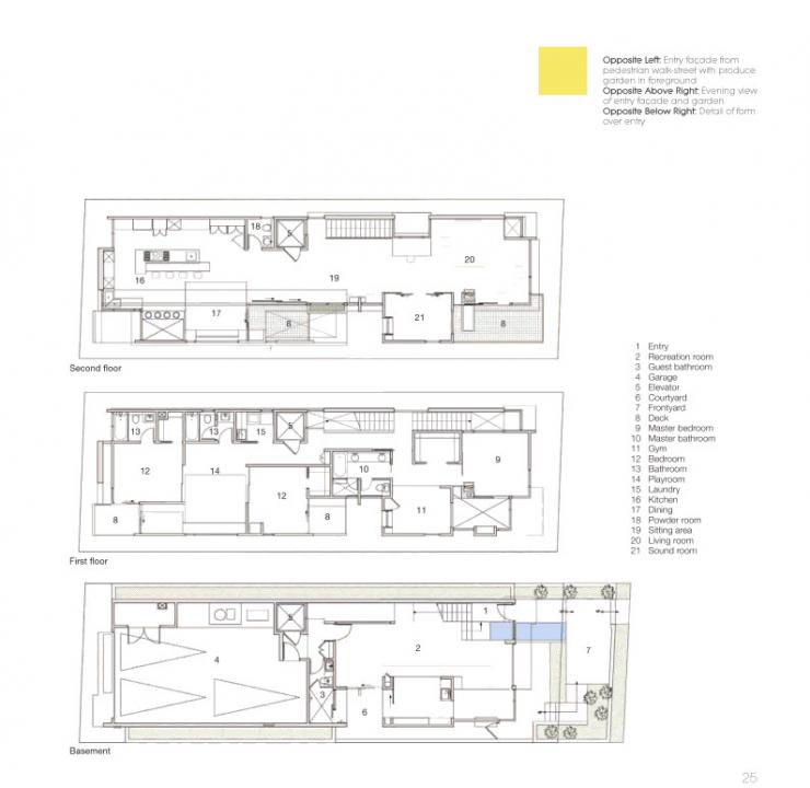
The Modern Californian Beach House catalogues the eclectic and always original modernist beach house architecture of Patrick Killen, who for more than thirty years has been Managing Principal of the renowned Studio 9one2 architectural firm.
Killen, along with a handful of other architects, was responsible for introducing serious modern design to the Los Angeles beach communities in the mid-80s, which at the time was a ‘crazy quilt of fantasy structures all built on postage-stamp sized lots wedged together in a dense pattern laid out generations earlier’.
The projects featured in this collection span Killen’s stellar career, from the Shearin House, which established modernism as a viable architectural motif on the western edge of Los Angeles, to 139 Hermosa Avenue, a definitive and welcome statement of modernity amid a sea of ramshackle and derelict structures.
Пролистать книгу The Modern Californian Beach House на Google books
Building for Tomorrow: Visionary Architecture from Around the World
Technical Drawing for Fashion Design Vol. 2: Garment Source Book
Fit Men Wanted: Original Posters from the Home Front
Creating the Artful Home: The Aesthetic Movement
International Floral Art 2016/2017
and:guide San Francisco (Architecture and Design Guides)